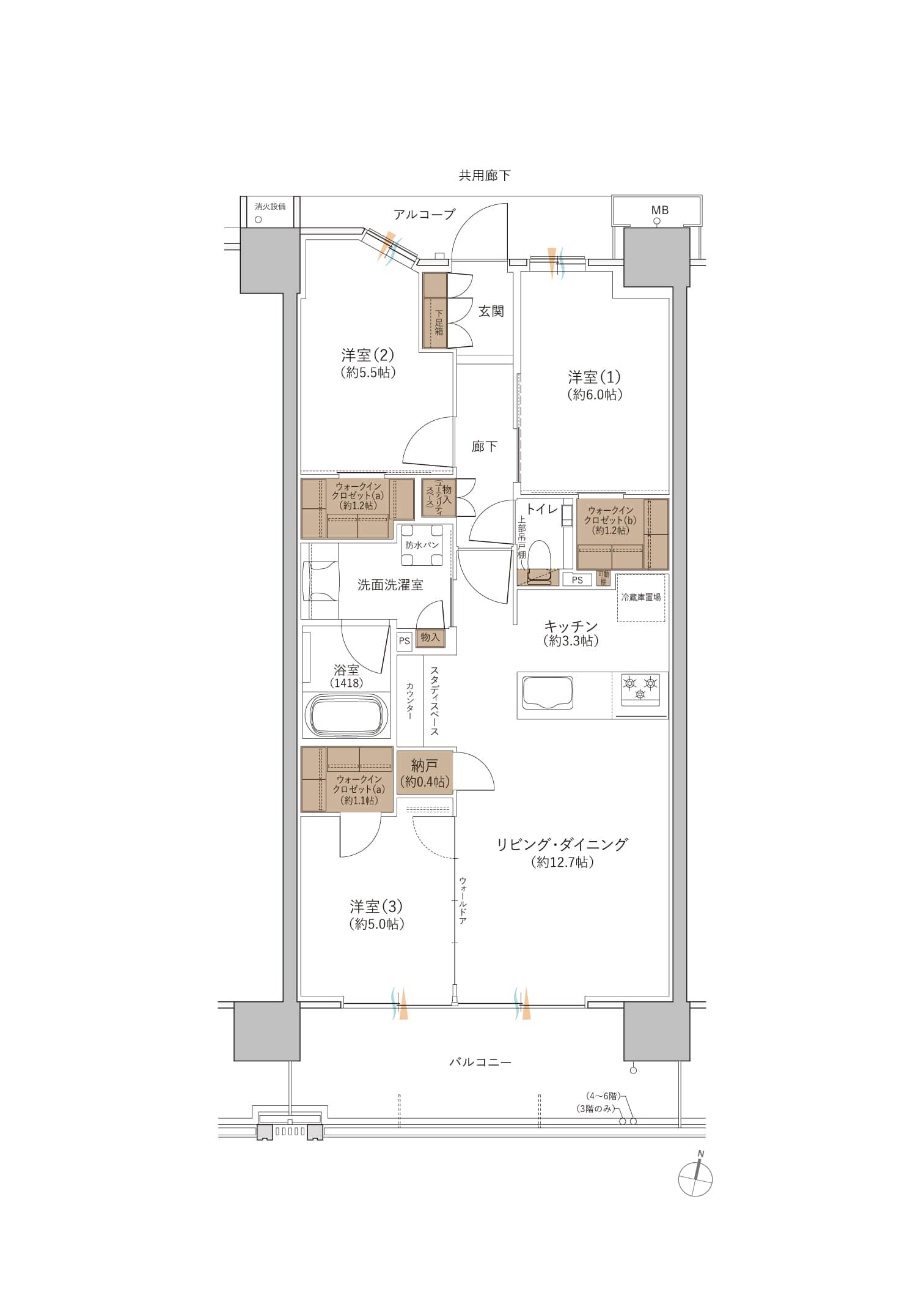
NEW
K
type
3
LDK+3WIC+N
専有面積/
73
.96㎡
(約22.37坪)
バルコニー面積/
12.32㎡
(約3.72坪)
アルコーブ面積/
5.06㎡
(約1.53坪)
収納
通風
採光
WIC=ウォークインクロゼット
N=納戸
印刷する
一覧へ戻る
※掲載の間取りは設計段階のものであり、今後変更になる場合があります。