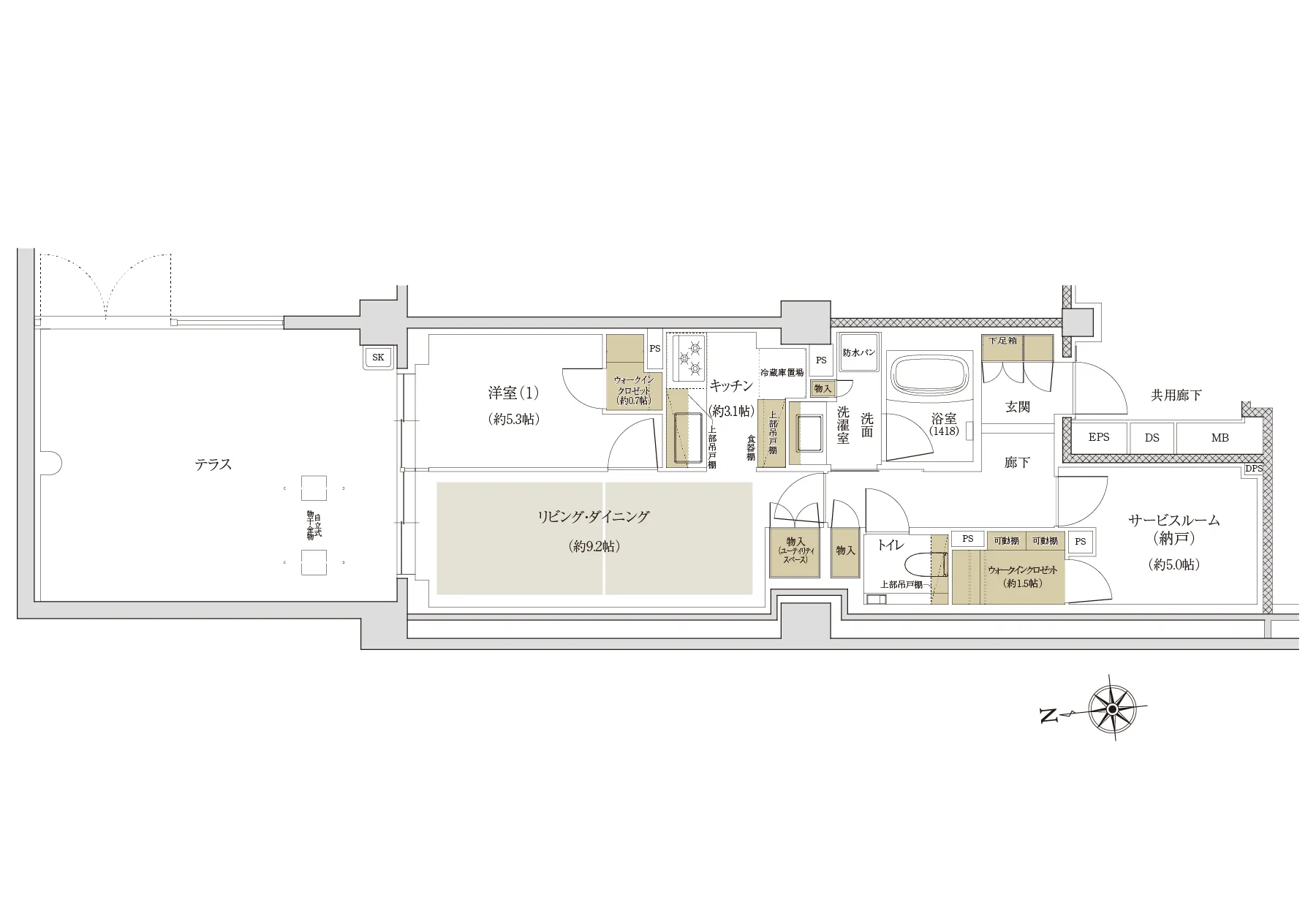
Pttype

1LDK+S+2WIC

住居専有面積/59.10㎡(約17.87坪)
テラス面積/28.50㎡(8.62坪)
間取りPttype
床暖房範囲 収納範囲
PDFで開く

Back

一覧に戻る

※掲載の間取り図は、計画段階の設計図書を基に描き起こしたもので、改良・改善等の理由により変更となる場合がございます。