PLAN

image photo

image photo

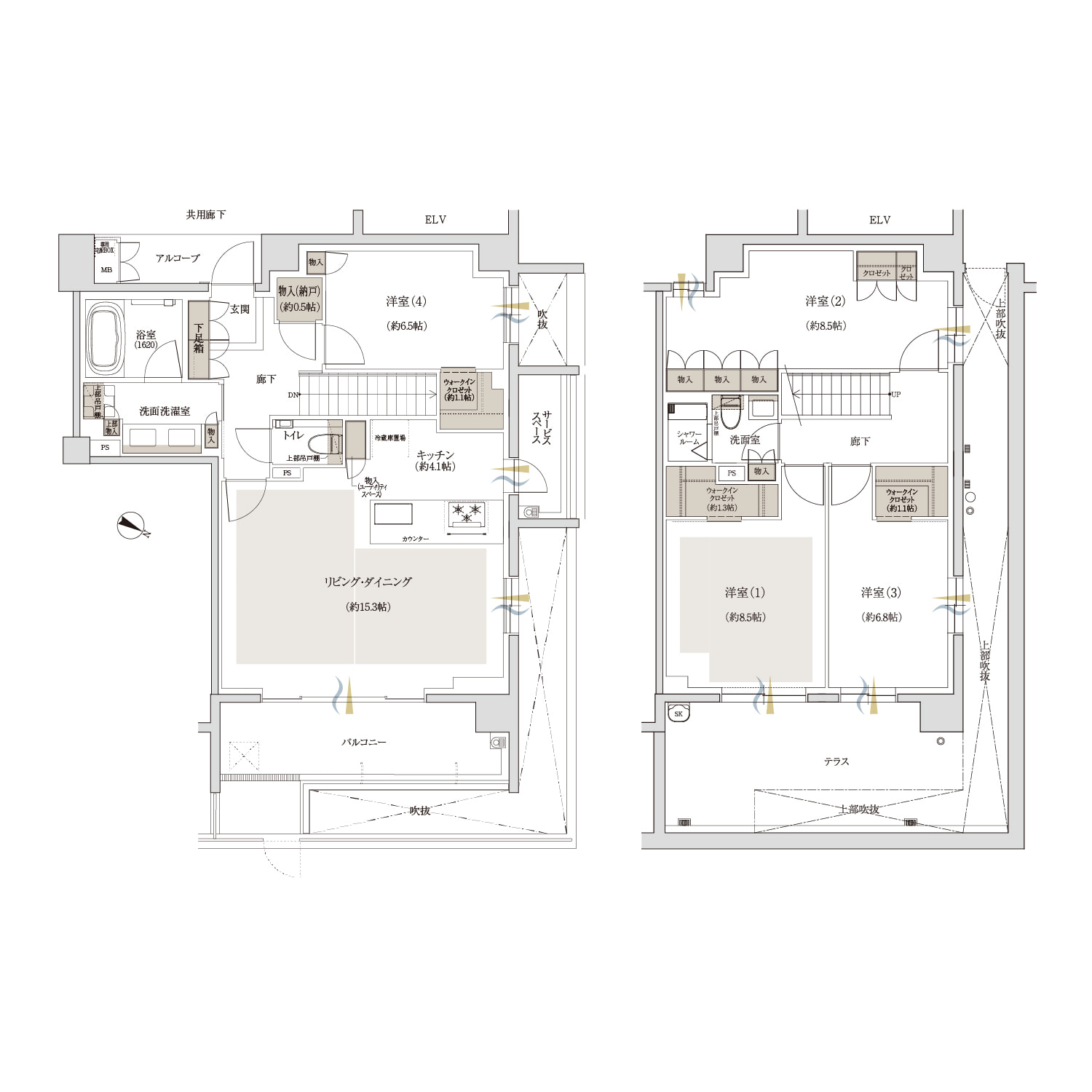
暮らし方で選べる 豊富なプランと快適な設備。
平均専有面積80㎡超、ワイドスパン設計※1100㎡超のプレミアム住戸もご用意。

Limited Contents

物件エントリー者様
限定サイト

限定サイトをご覧いただくためには
パスワードが必要になります。

※1.一部住戸除く
※掲載の図面は計画段階の図面を基に描き起こしたもので、実際とは多少異なります。