LIMITED
物件エントリー者様限定サイト​

「ジオ等々力七丁目」にエントリーいただき、ありがとうございます。
本サイトでは、エントリー者様限定で物件のより深い魅力をご紹介しています。

Schedule
販売スケジュール

【完全予約制】オンライン案内会開催

ご予約はこちら

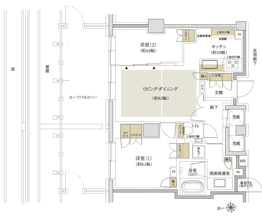
PLAN 限定公開間取り

AREA MOVIE 限定公開ムービー

YouTube Thumbnail
※掲載の間取り図は、計画段階の設計図書を基に描き起こしたもので、改良・改善等の理由により変更となる場合がございます。