Plan
間取り
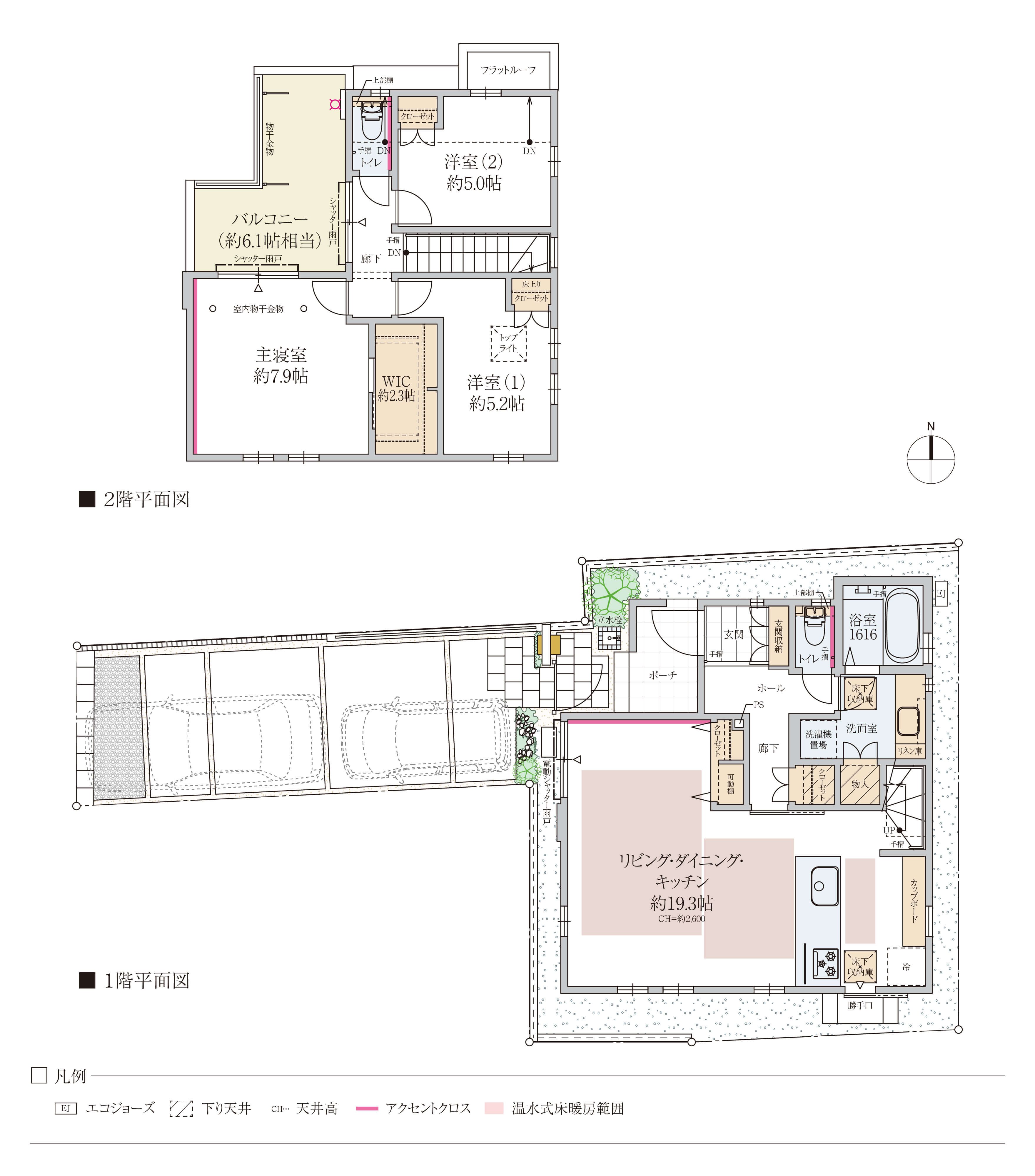
1号邸
4LDK+ウォークインクローゼット
-
敷地面積
109.80㎡(約33.21坪)
-
建物延床面積
107.64㎡(約32.56坪)
-
1階床面積/57.75㎡(約17.46坪)
-
2階床面積/49.89㎡(約15.09坪)
- 自然なコミュニケーションを育む、リビングスルー階段の間取り
- 移動距離が短いコの字型キッチンで効率的な家事動線を実現
- 約10.8帖の広い主寝室にはウォークインクローゼットとクローゼットの2つを配置し、高い収納力を確保
2号邸
3LDK+ウォークインクローゼット
-
敷地面積
110.93㎡(約33.55坪)
(路地状部分 29.00㎡を含む) -
建物延床面積
92.32㎡(約27.92坪)
-
1階床面積/50.92㎡(約15.40坪)
-
2階床面積/41.40㎡(約12.52坪)
- 玄関よりスムーズにアクセスができる洗面室への動線
- 居室が隣り合わない間取りで、プライベートな空間を確保
- 主寝室と廊下の2ケ所から出入可能なバルコニー
