Plan
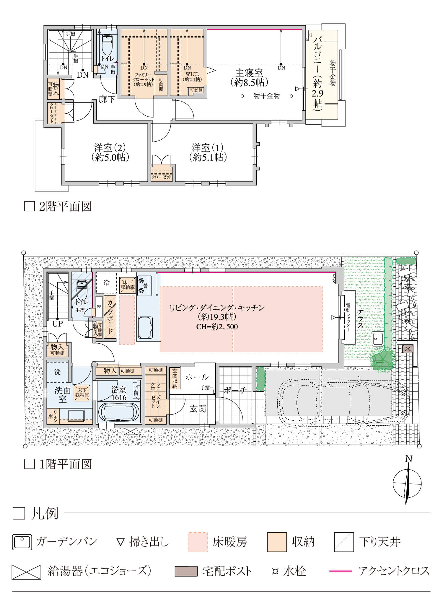
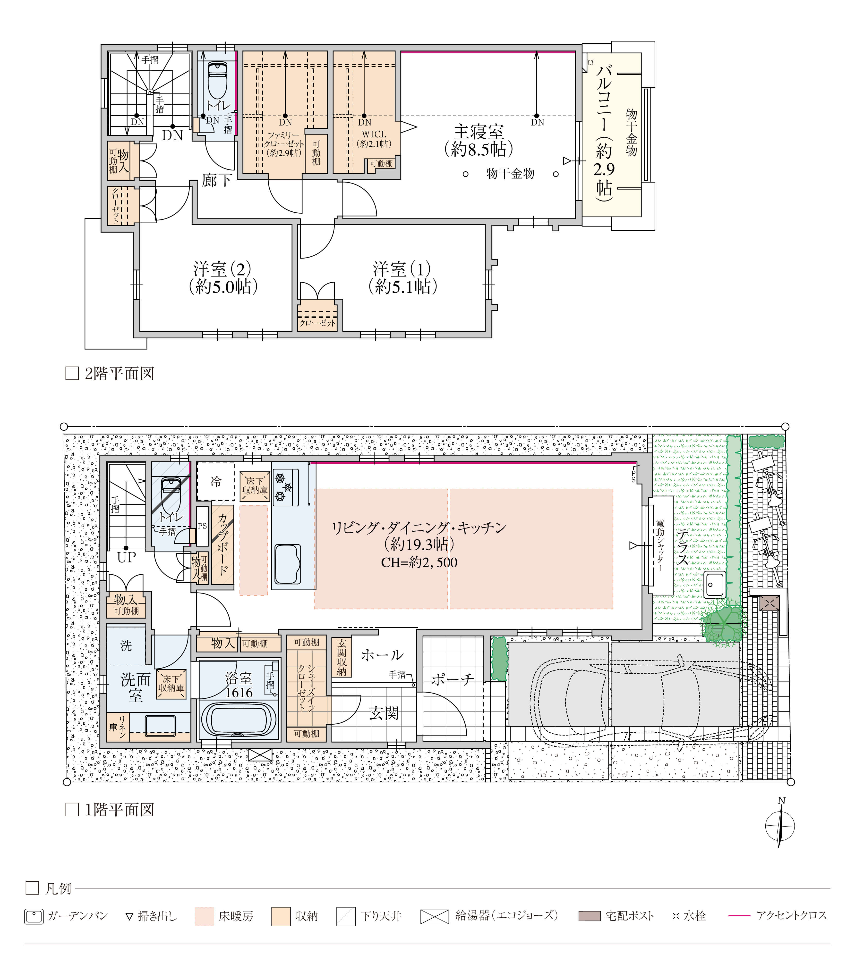
間取り
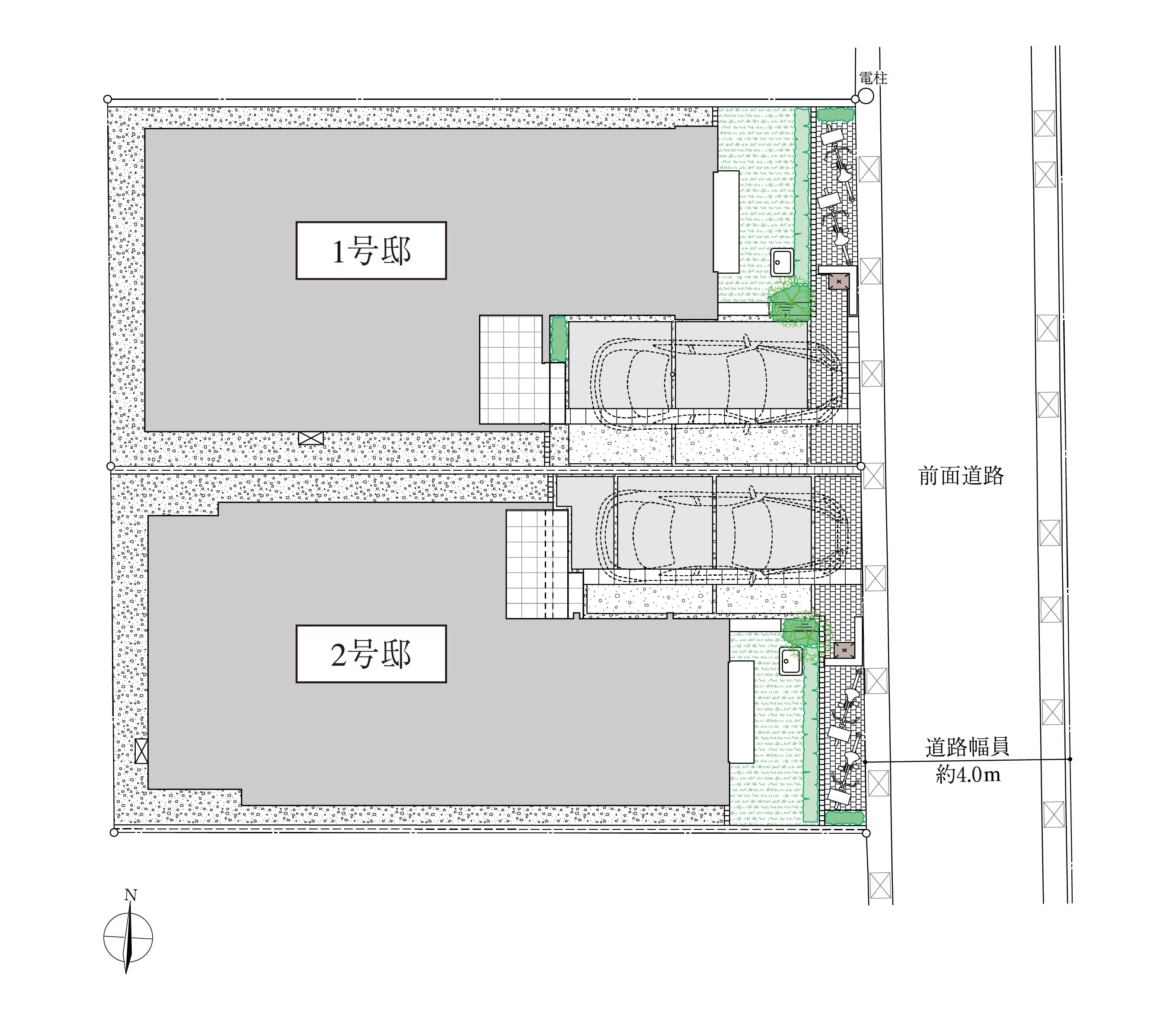
1号邸
3LDK+ シューズインクローゼット
+ ファミリークローゼット
+ ウォークインクローゼット
-
敷地面積
104.60㎡(約31.64坪)
- 建物延床面積
103.62㎡(約31.34坪)
-
1階床面積/53.97㎡(約16.32坪)
-
2階床面積/49.65㎡(約15.01坪)
- リビング・ダイニングが一体的なプランニングで、広々とした空間に。
- 廊下がないリビングプランで無駄のない効率的なプランニング。
- 家族みんなが使えるファミリークローゼットを設置。
- 可動棚付の、広々としたシューズインクローゼットを設置。
