Plan
間取り
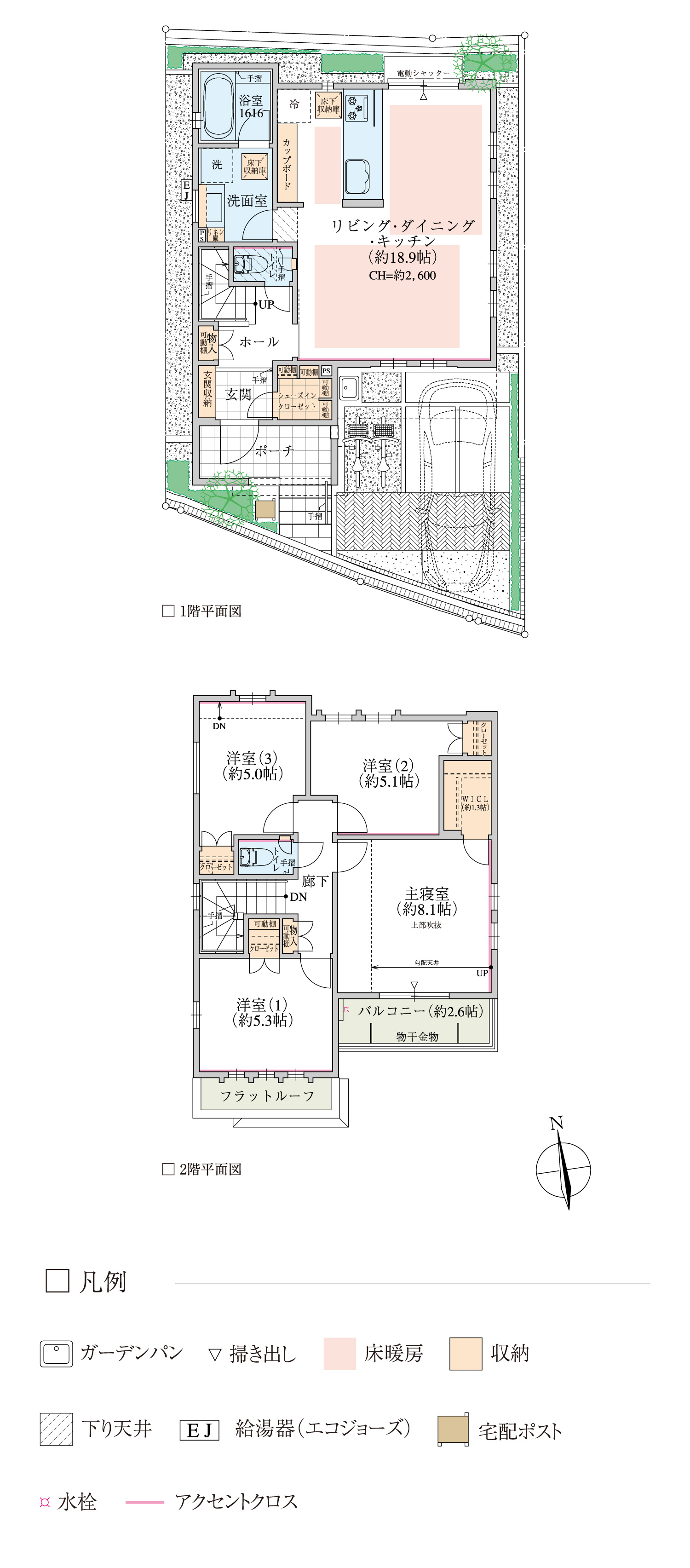
1号邸
4LDK+シューズインクローゼット
+ウォークインクローゼット
-
敷地面積
102.72㎡(約31.07坪)
-
建物延床面積
103.45㎡(約31.29坪)
-
1階床面積/53.01㎡(約16.03坪)
-
2階床面積/50.44㎡(約15.25坪)
- リビング・ダイニング・キッチンからすぐに洗面室にアクセスできる効率的な家事動線。
- 廊下が無いリビングプランで無駄のないプランニング。
- 収納量のあるウオークインクローゼットを設置。
2号邸
4LDK+ウォークインクローゼット
-
敷地面積
101.50㎡(約30.70坪)
-
建物延床面積
99.86㎡(約30.20坪)
-
1階床面積/50.45㎡(約15.26坪)
-
2階床面積/49.41㎡(約14.94坪)
- リビング・ダイニング全体を見渡せる使い勝手のよい対面キッチン。
- ワイドな洗面台で、朝の身支度もストレスフリー。
- 2部屋からアクセス可能な可動棚付きのウオーインクローゼットを設置。
