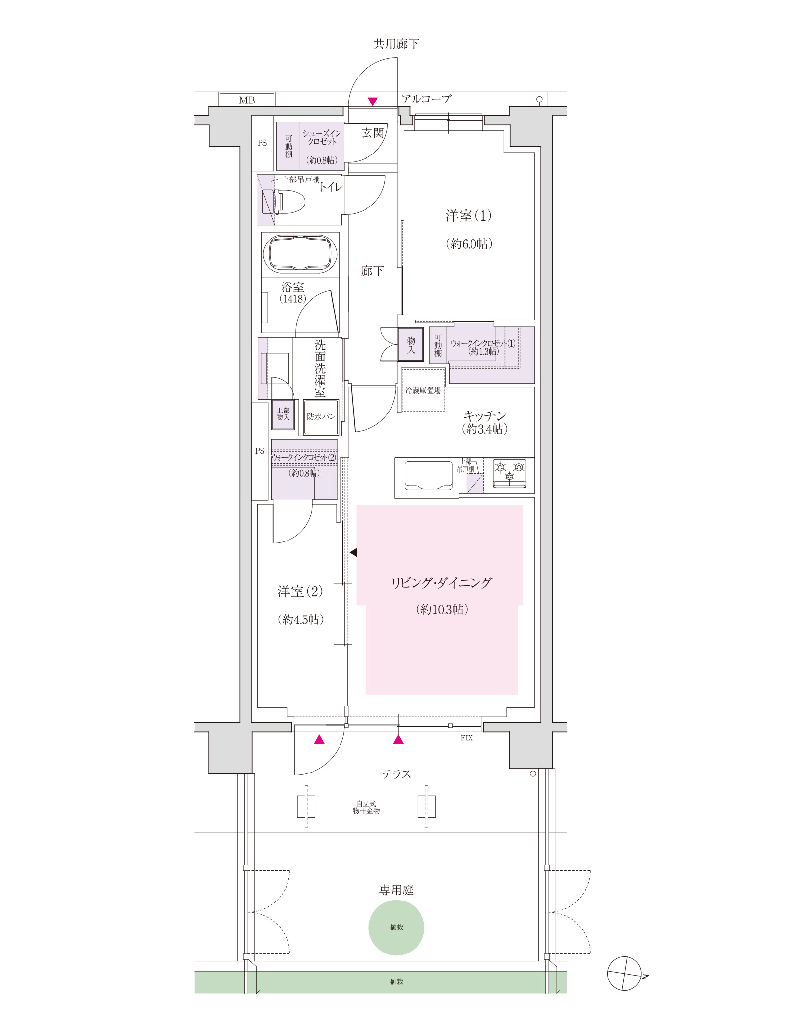
PLAN
先着順販売住戸
PLANNING.1
バルコニーにもつながる、広々とした一体空間へと自在にチェンジ。
1連結引き戸
リビング・ダイニングから出入りする洋室の間仕切りには、連結引き戸を採用。床にレールがない仕様なのでお掃除しやすく、開放感のある空間を実現できます。引き戸を開けると大勢が集うホームパーティなどに、引き戸を閉めて洋室を書斎やワークルームにするなど多彩な使い方ができます。
※一部住戸のみ

PLANNING.2
刻々と変化する窓外の自然が、団欒のひとときの背景になる。
2連窓サッシ
テラスに面し、リビング・ダイニングと隣接する洋室の間の壁を極力なくすことで、窓が一体的に見える連窓サッシを採用。開口部が広がり、明るく開放感のある空間を実現します。

PLANNING.3
ゆとりある天井高と庭先の奥行きを確保して、明るさと開放感を手に入れる。
3アウトドアスペース
1階住戸のみリビング・ダイニングの天井高を約2.6mと高くしており、このリビング・ダイニングとつながるアウトドアスペースは、テラスが約1.8m、専用庭が約2.5mという奥行きを確保。さらに専用庭の奥にも、共用の植栽スペースを約3.0m確保しています(東向き住戸は約2.7m)。窓外の奥行きを広くすることで、空間的な広がりのあるリビング・ダイニングに陽光が十分に降り注ぎ、暮らしにいっそうの明るさと開放感をもたらします。
※管理規約上、植栽部分への立入はできません。






