PLAN
参考写真※「ジオゲストサロン北参道」コンセプトルーム
住まう人のライフスタイルにゆとりをもって応える、
上質さを大切にした多彩なプラン。
落ち着きと開放感ある日常を堪能できる。
-
豊富な収納が実現する
シューズインクロゼット採用
※一部住戸除く -
光と緑と風を感じる心地いい
約8m幅の
ルーフバルコニー住戸 -
2フロアの戸建て感覚が味わえる
クロスメゾネット住戸
-
多彩な29タイプのプラン
43㎡台(1LDK)〜83㎡台(3LDK)
-
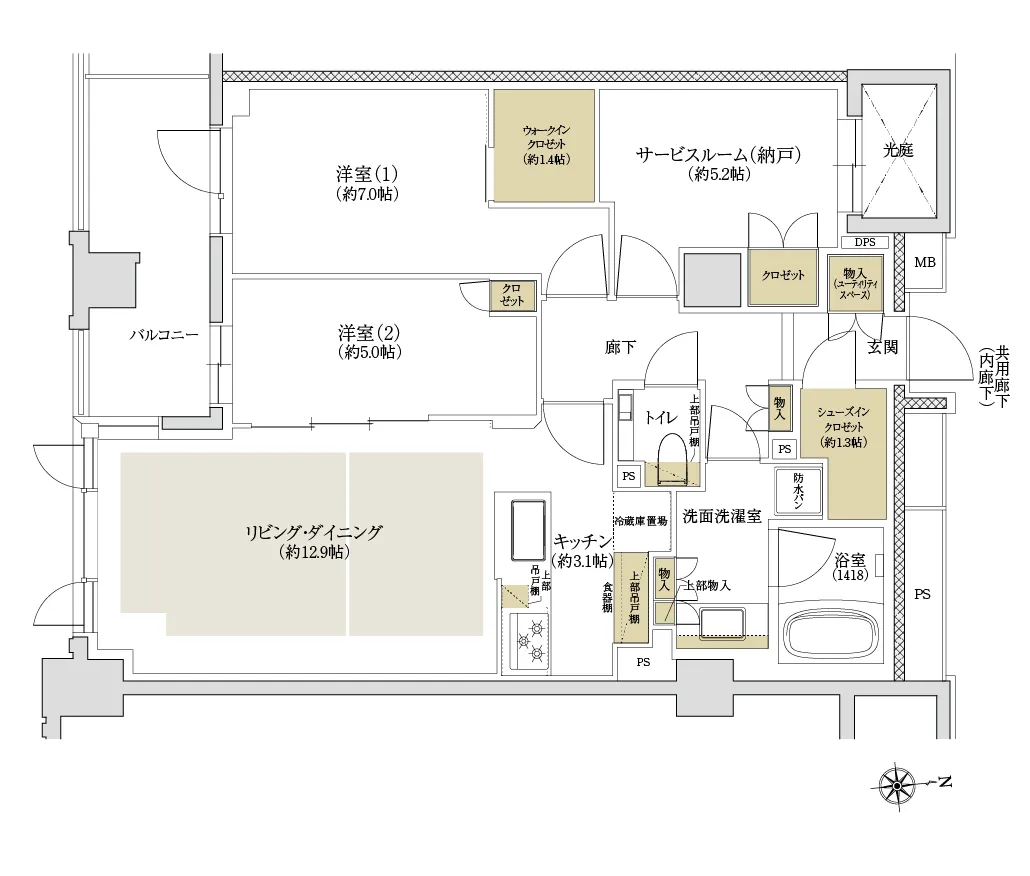
南向き住戸・シューズインクロゼット採用
78.33㎡
Dtype
2LDK+S+WIC+SIC住戸専有面積/78.33㎡(約23.69坪)
バルコニー面積/8.28㎡(約2.50坪)
MORE -
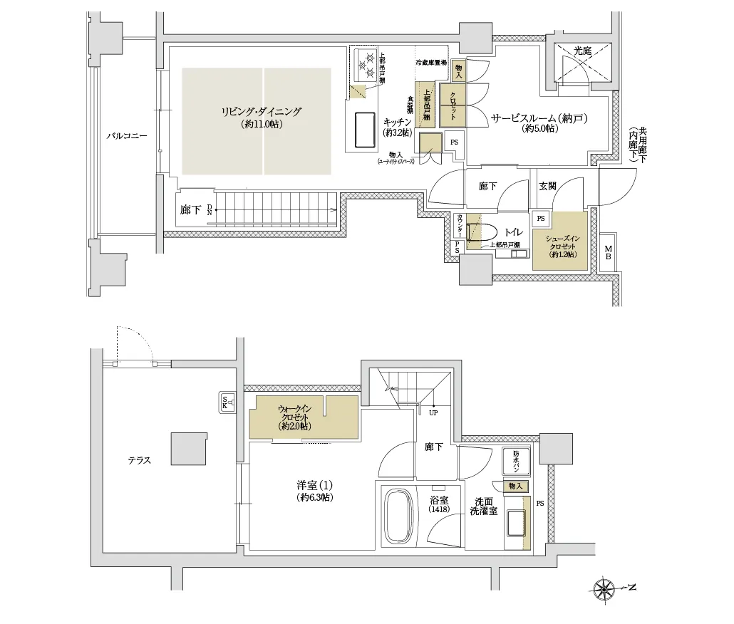
南向きクロスメゾネット住戸
71.06㎡
Bttype
1LDK+S+WIC+SIC住戸専有面積/71.06㎡(約21.49坪)
バルコニー面積/5.56㎡(約1.68坪)
テラス面積/14.61㎡(4.41坪)
MORE -
北東角住戸
74.63㎡
Utype
3LDK+WIC限定ページにて公開中住戸専有面積/74.63㎡(約22.57坪)
バルコニー1面積(3階)/15.95㎡(約4.82坪)
バルコニー1面積(4階)/11.07㎡(約3.34坪)
バルコニー2面積/3.15㎡(約0.95坪)
MORE -
北向き最上階限定1邸
56.49㎡
Wtype
2LDK限定ページにて公開中住戸専有面積/56.49㎡(約17.08坪)
ルーフバルコニー面積/約22.17㎡(約6.70坪)
専用トランクルーム面積/0.49㎡(約0.14坪)
※住居専有面積には、専用トランクルームの面積も含まれます。
MORE
