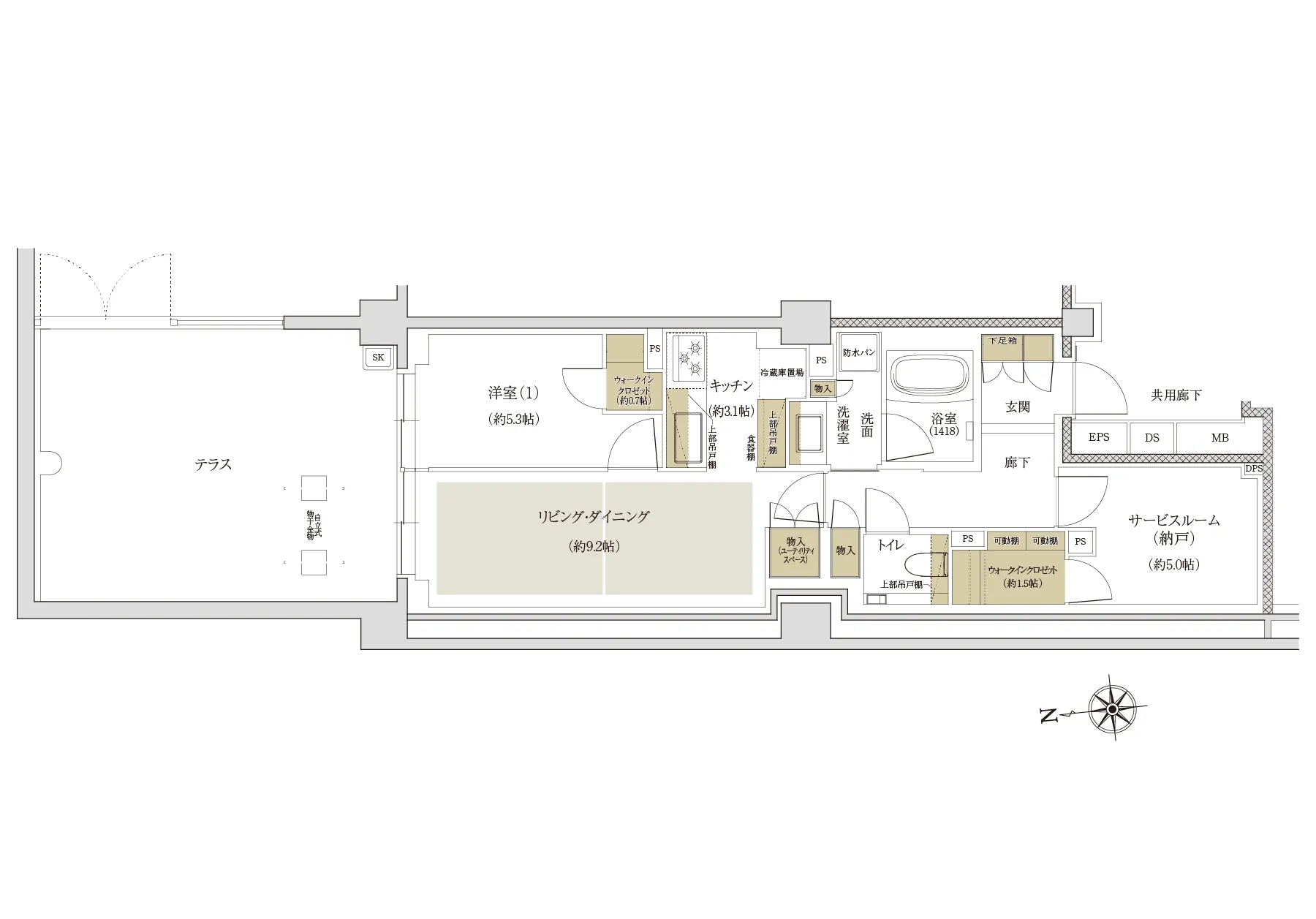
Pttype
1LDK+S+2WIC
住居専有面積/59.10㎡(約17.87坪)
テラス面積/28.50㎡(8.62坪)
テラス面積/28.50㎡(8.62坪)
床暖房範囲
収納範囲
PDFで開く
Back
一覧に戻る