ポートレートモード(縦置き)表示でご覧ください。
来場予約受付中
2026.02.10
デザインページに設計者メッセージを追加しました。
2025.12.16
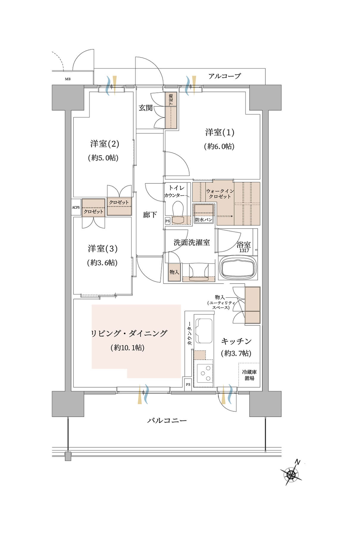
新規間取り(A・D・Gタイプ)を公開しました。
2025.12.08
スペシャルコンテンツ、インタビュー第4弾を公開しました。
2025.10.17
新規間取り(B・C・E・Fタイプ)を追加しました。
2025.10.13
デザインページを公開しました。
2025.09.24
新規間取り(Iタイプ)を追加しました。
2025.09.01
スペシャルコンテンツ、インタビュー第3弾を公開しました。
2025.08.23
優先案内会来場予約受付を開始しました。
2025.04.28
ジオ東灘青木 物件サイトを公開しました。
お問い合わせは 「阪急阪神すまいのギャラリー」
営業時間/10:00~17:00 定休日/水・木曜日
新着情報
TEL
来場予約
お問い合わせ
3LDK
通風
採光
収納
床暖房
PAGE TOP